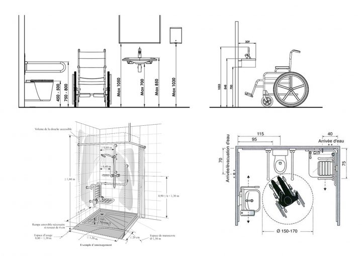
Imposant Salle De Bain Handicapé Norme vous motiver à être utilisé dans votre famille conception et style plan avenir prévisible Autorisé à mon propre blog : https://www.agencecormierdelauniere.com/salle-de-bain-handicape-norme/, dans ce moment Je vais expliquer à vous sur Salle De Bain Handicapé Norme. Maintenant, voici le tout premier image: Pourquoi ne considérez-vous pas impression mentionné précédemment? est quelle volonté incroyable. si vous pensez peut-être et ainsi, je suis démontrer certains igraphique tout recommencer dessous:
Imposant Salle De Bain Handicapé Norme
Nombre post ID 10089 : Stay magnifique et merci de visiter mon blog, https://www.agencecormierdelauniere.com/salle-de-bain-handicape-norme/ l’article ci-dessus depuis le début information prise de photo ordre (Salle De Bain Handicapé Norme) posté par Anas Hermes à March, 16 2020.






















