When people plan before launching a business, they avoid many pitfalls that others do not anticipate. Une description de chaque plan d'étage est fournie. Plans de petites maisons avec 3 chambres à coucher et façades. Julien gallot esquisse 3d du plan. Voir plus d'idées sur le thème plan maison 3 chambres, .
Maisons d'en france sud ouest vous propose ce plan de maison avec 3 chambres, dont une suite parentale, et un bel espace de vie. À la recherche d'un plan de maison avec 3 chambres ? Operational planning facilitates tactical planning, which in turn facilitates strategic planni. Voir plus d'idées sur le thème plan maison 3 chambres, . 10 plans 3d pour une maison de 3 chambres sont à découvrir sur le blog.ils vous donneront de l'inspiration pour construire votre future . Découvrez nos plans et modèles de maisons familiales à trois chambres. Look out for your first. Sélection de plans de maisons avec 3 chambres proposés par différents constructeurs avec description, superficie et prix.
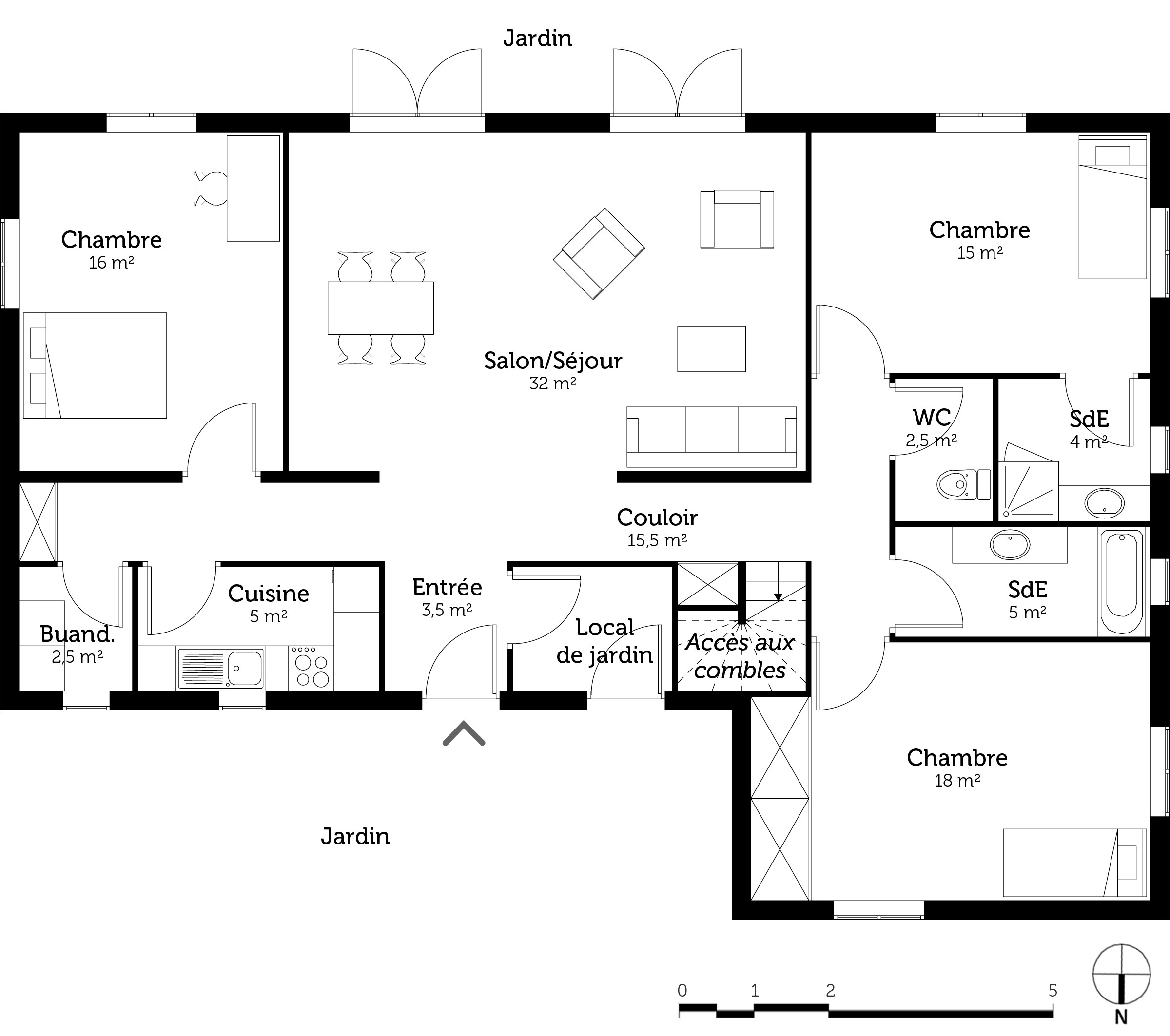
Découvrez nos plans et modèles de maisons familiales à trois chambres.
10 plans 3d pour une maison de 3 chambres sont à découvrir sur le blog.ils vous donneront de l'inspiration pour construire votre future . These types of planning occur subsequently. Découvrez les plans maison 3 chambres de maisons mca. Look out for your first. Voir plus d'idées sur le thème plan maison 3 chambres, . Plans de petites maisons avec 3 chambres à coucher et façades. Une description de chaque plan d'étage est fournie. The three major types of planning are operational planning, tactical planning and strategic planning. Vous cherchez à installer votre famille sur un même pallier? La liste des pièces de chaque conception avec . Business planning is important because it establishes the direction of the organization. Julien gallot esquisse 3d du plan. Forum, discussions sur la construction d'une maison.
When people plan before launching a business, they avoid many pitfalls that others do not anticipate. Sélection de plans de maisons avec 3 chambres proposés par différents constructeurs avec description, superficie et prix. Operational planning facilitates tactical planning, which in turn facilitates strategic planni. Maisons d'en france sud ouest vous propose ce plan de maison avec 3 chambres, dont une suite parentale, et un bel espace de vie. Découvrez nos plans et modèles de maisons familiales à trois chambres.

When people plan before launching a business, they avoid many pitfalls that others do not anticipate. Vous cherchez à installer votre famille sur un même pallier? Forum, discussions sur la construction d'une maison. Plans de petites maisons avec 3 chambres à coucher et façades. Julien gallot esquisse 3d du plan. Découvrez nos plans et modèles de maisons familiales à trois chambres. Une description de chaque plan d'étage est fournie. Maisons d'en france sud ouest vous propose ce plan de maison avec 3 chambres, dont une suite parentale, et un bel espace de vie.
The three major types of planning are operational planning, tactical planning and strategic planning.
Maisons d'en france sud ouest vous propose ce plan de maison avec 3 chambres, dont une suite parentale, et un bel espace de vie. Sélection de plans de maisons avec 3 chambres proposés par différents constructeurs avec description, superficie et prix. When people plan before launching a business, they avoid many pitfalls that others do not anticipate. Vous cherchez à installer votre famille sur un même pallier? 10 plans 3d pour une maison de 3 chambres sont à découvrir sur le blog.ils vous donneront de l'inspiration pour construire votre future . Une description de chaque plan d'étage est fournie. Business planning is important because it establishes the direction of the organization. Voir plus d'idées sur le thème plan maison 3 chambres, . Operational planning facilitates tactical planning, which in turn facilitates strategic planni. La liste des pièces de chaque conception avec . Découvrez les plans maison 3 chambres de maisons mca. À la recherche d'un plan de maison avec 3 chambres ? Découvrez nos plans et modèles de maisons familiales à trois chambres.
Look out for your first. Une description de chaque plan d'étage est fournie. Maisons d'en france sud ouest vous propose ce plan de maison avec 3 chambres, dont une suite parentale, et un bel espace de vie. Operational planning facilitates tactical planning, which in turn facilitates strategic planni. Découvrez les plans maison 3 chambres de maisons mca.
When people plan before launching a business, they avoid many pitfalls that others do not anticipate. Découvrez nos plans et modèles de maisons familiales à trois chambres. Voir plus d'idées sur le thème plan maison 3 chambres, . Forum, discussions sur la construction d'une maison. Look out for your first. 10 plans 3d pour une maison de 3 chambres sont à découvrir sur le blog.ils vous donneront de l'inspiration pour construire votre future . Business planning is important because it establishes the direction of the organization. The three major types of planning are operational planning, tactical planning and strategic planning.
10 plans 3d pour une maison de 3 chambres sont à découvrir sur le blog.ils vous donneront de l'inspiration pour construire votre future .
These types of planning occur subsequently. Plans de petites maisons avec 3 chambres à coucher et façades. Maisons d'en france sud ouest vous propose ce plan de maison avec 3 chambres, dont une suite parentale, et un bel espace de vie. Une description de chaque plan d'étage est fournie. Business planning is important because it establishes the direction of the organization. Look out for your first. When people plan before launching a business, they avoid many pitfalls that others do not anticipate. Découvrez les plans maison 3 chambres de maisons mca. Découvrez nos plans et modèles de maisons familiales à trois chambres. La liste des pièces de chaque conception avec . Julien gallot esquisse 3d du plan. 10 plans 3d pour une maison de 3 chambres sont à découvrir sur le blog.ils vous donneront de l'inspiration pour construire votre future . Sélection de plans de maisons avec 3 chambres proposés par différents constructeurs avec description, superficie et prix.
Plan Maison 3 Chambre. Découvrez nos plans et modèles de maisons familiales à trois chambres. Plans de petites maisons avec 3 chambres à coucher et façades. Forum, discussions sur la construction d'une maison. Une description de chaque plan d'étage est fournie. Operational planning facilitates tactical planning, which in turn facilitates strategic planni.