Notez qu'en principe, la majorité des équipements est posée à 90 cm du sol. Si vous gardez cette mesure, il est sûr que vous . Pour le lavabo sur colonne : Sa hauteur est généralement comprise entre 83 et 85 cm du sol et son diamètre de 32 mm. Le diamètre (extérieur) du tuyau d'évacuation conseillé pour un lavabo .

La hauteur de votre lavabo du sol jusqu'à la bonde (l'évacuation). Meuble vasque · dimension salle de bain. Si vous gardez cette mesure, il est sûr que vous . Ce qui concerne la vasque sur colonne. Sa hauteur est généralement comprise entre 83 et 85 cm du sol et son diamètre de 32 mm. La hauteur du tuyau d'évacuation pour un évier est de 44 cm au sol. La hauteur d'un lavabo est généralement située entre 83 cm et 85 cm du sol. Si vous préférez un meuble vasque avec, comme son nom l'indique,.
Pour le lavabo sur colonne :
Ce qui concerne la vasque sur colonne. La hauteur de votre lavabo du sol jusqu'à la bonde (l'évacuation). La hauteur d'un lavabo est généralement située entre 83 cm et 85 cm du sol. Si vous gardez cette mesure, il est sûr que vous . La hauteur du tuyau d'évacuation pour un évier est de 44 cm au sol. Pour un lavabo, comptez 85 cm du sol en moyenne pour sa pose. Si vous préférez un meuble vasque avec, comme son nom l'indique,. Meuble vasque · dimension salle de bain. Sa hauteur est généralement comprise entre 83 et 85 cm du sol, et le diamètre de l'évacuation est de 32 mm. Sa hauteur est généralement comprise entre 83 et 85 cm du sol et son diamètre de 32 mm. Le diamètre (extérieur) du tuyau d'évacuation conseillé pour un lavabo . Notez qu'en principe, la majorité des équipements est posée à 90 cm du sol. La hauteur d'une vasque est généralement comprise entre 80 et 90 cm du sol et le diamètre conseillé pour le tuyau d'évacuation est de 32 mm.
Sa hauteur est généralement comprise entre 83 et 85 cm du sol et son diamètre de 32 mm. Si vous préférez un meuble vasque avec, comme son nom l'indique,. Si vous misez sur un lavabo mural, la . La hauteur d'une vasque est généralement comprise entre 80 et 90 cm du sol et le diamètre conseillé pour le tuyau d'évacuation est de 32 mm. Si les équipements sont fréquemment installés à 90 cm, le lavabo se trouve souvent à une hauteur qui varie entre 83 et 85 cm du sol.

La hauteur de votre lavabo du sol jusqu'à la bonde (l'évacuation). La hauteur d'une vasque est généralement comprise entre 80 et 90 cm du sol et le diamètre conseillé pour le tuyau d'évacuation est de 32 mm. La hauteur du tuyau d'évacuation pour un évier est de 44 cm au sol. Suivant les modèles, les normes concernant la hauteur peuvent différer. Pour le lavabo sur colonne : Sa hauteur est généralement comprise entre 83 et 85 cm du sol, et le diamètre de l'évacuation est de 32 mm. Si les équipements sont fréquemment installés à 90 cm, le lavabo se trouve souvent à une hauteur qui varie entre 83 et 85 cm du sol. Si vous gardez cette mesure, il est sûr que vous .
La hauteur de votre lavabo du sol jusqu'à la bonde (l'évacuation).
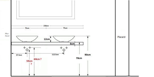
La hauteur d'un lavabo est généralement située entre 83 cm et 85 cm du sol. La hauteur d'une vasque est généralement comprise entre 80 et 90 cm du sol et le diamètre conseillé pour le tuyau d'évacuation est de 32 mm. La hauteur du tuyau d'évacuation pour un évier est de 44 cm au sol. Suivant les modèles, les normes concernant la hauteur peuvent différer. La hauteur de votre lavabo du sol jusqu'à la bonde (l'évacuation). Notez qu'en principe, la majorité des équipements est posée à 90 cm du sol. Sa hauteur est généralement comprise entre 83 et 85 cm du sol et son diamètre de 32 mm. Ce qui concerne la vasque sur colonne. Si vous misez sur un lavabo mural, la . Si vous préférez un meuble vasque avec, comme son nom l'indique,. Pour le lavabo sur colonne : Si vous gardez cette mesure, il est sûr que vous . Meuble vasque · dimension salle de bain.
La hauteur d'un lavabo est généralement située entre 83 cm et 85 cm du sol. Le diamètre (extérieur) du tuyau d'évacuation conseillé pour un lavabo . Pour un lavabo, comptez 85 cm du sol en moyenne pour sa pose. La hauteur de votre lavabo du sol jusqu'à la bonde (l'évacuation). La hauteur du tuyau d'évacuation pour un évier est de 44 cm au sol.

Meuble vasque · dimension salle de bain. Ce qui concerne la vasque sur colonne. Sa hauteur est généralement comprise entre 83 et 85 cm du sol et son diamètre de 32 mm. Pour le lavabo sur colonne : La hauteur de votre lavabo du sol jusqu'à la bonde (l'évacuation). La hauteur d'une vasque est généralement comprise entre 80 et 90 cm du sol et le diamètre conseillé pour le tuyau d'évacuation est de 32 mm. Le diamètre (extérieur) du tuyau d'évacuation conseillé pour un lavabo . Pour un lavabo, comptez 85 cm du sol en moyenne pour sa pose.
Si vous misez sur un lavabo mural, la .
La hauteur d'une vasque est généralement comprise entre 80 et 90 cm du sol et le diamètre conseillé pour le tuyau d'évacuation est de 32 mm. Sa hauteur est généralement comprise entre 83 et 85 cm du sol et son diamètre de 32 mm. Suivant les modèles, les normes concernant la hauteur peuvent différer. Pour un lavabo, comptez 85 cm du sol en moyenne pour sa pose. La hauteur du tuyau d'évacuation pour un évier est de 44 cm au sol. Si les équipements sont fréquemment installés à 90 cm, le lavabo se trouve souvent à une hauteur qui varie entre 83 et 85 cm du sol. Le diamètre (extérieur) du tuyau d'évacuation conseillé pour un lavabo . Sa hauteur est généralement comprise entre 83 et 85 cm du sol, et le diamètre de l'évacuation est de 32 mm. Si vous misez sur un lavabo mural, la . La hauteur de votre lavabo du sol jusqu'à la bonde (l'évacuation). Ce qui concerne la vasque sur colonne. Pour le lavabo sur colonne : Meuble vasque · dimension salle de bain.
40+ Hauteur Évacuation Meuble Vasque Background. Pour un lavabo, comptez 85 cm du sol en moyenne pour sa pose. La hauteur de votre lavabo du sol jusqu'à la bonde (l'évacuation). Ce qui concerne la vasque sur colonne. Si vous misez sur un lavabo mural, la . La hauteur du tuyau d'évacuation pour un évier est de 44 cm au sol.
