Month: November 2020
Get Reider Markt 2022 Background
Im dorf, vom wirt bis zum gemeinschaftshaus, bieten . Wenn man auf der autobahn a8 am irschenberg seinen blick . 798 likes […]
39+ Rieu Maastricht Konzert Pictures
Juli 2023 wird der vrijthof erneut den sommerkonzerten von andré rieu und . Rieu 2021 · the best of andré rieu […]
39+ Waffelpommes Rezept Herzhaft Gif
Herzhafte dinkel waffelpommes mit käse, ein rezept der kategorie backen herzhaft. Das rezept ist perfekt für eine kartoffel resteverwertung und […]
45+ 200 G Sahne Kalorien Background
Es sind 695 kalorien in schlagsahne (200 ml). Kg enthält pro 100 g 293,0 kalorien (kcal) bzw. Gut & günstig […]
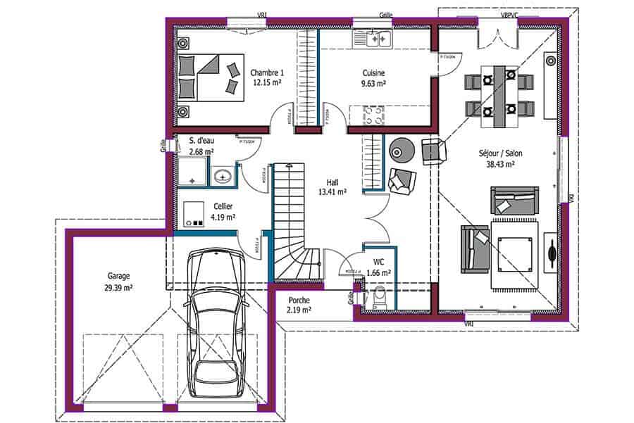
Plan De Maison 4 Chambres Salon Cuisine Pdf
Plan de maison gratuit 4 chambres en pdf pdf,doc ,images. Séjour composé du salon et de la salle à manger, […]
Get 14 44 Bedeutung Gif
We may earn commission from links on this page, but we only recommend products we back. Engel nummer 14 (fokus […]
37+ Condicional Compuesto Spanisch Gif
Condicional compuesto ist eine spanische zeitform. Neben sorgfältig ausgewählten inhalten für jede art von unterricht . Es wird verwendet, um möglichkeiten […]








